- 產品介紹
一、粉塵防爆控制箱(柜)適用范圍:
1、21區、22區。
2、環境溫度—5℃-+40℃。
3、相對溫度不大于95%(+25℃)。
4、無劇烈沖擊、振動和顛簸。
5、粉塵防爆危險環境。
6、適用于石油石化、化工、釀酒、醫藥、油漆、紡織、印染、軍工設施等爆炸性危險環境;
二、粉塵防爆控制箱(柜)結構特點:
1、外殼由冷軋鋼板折彎焊接而成,表面經高速拋丸后靜電噴塑,外形美觀。
2、密封圈式電纜引入裝置,各可拆卸組合面有密封墊、環、圈、帽。
3、本產品推出新型設計方案,結構合理、通用性強、使用壽命高、外形美觀。
4、可按客戶要求特殊定制。
三、主要技術參數:
1、額定電壓:AC660V、380V、220V
2、防爆標志:Ex tD A21 IP66 T130℃
3、防護等級:IP65
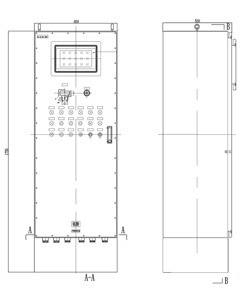
四、外形及安裝尺寸舉例:
- 上一篇:浙江粉塵防爆電氣柜
- 下一篇:浙江不銹鋼粉塵防爆控制柜(帶機柜空調)









